• PRACOWNIA
  • PROJEKTY
  • PROCES
  • KONTAKT

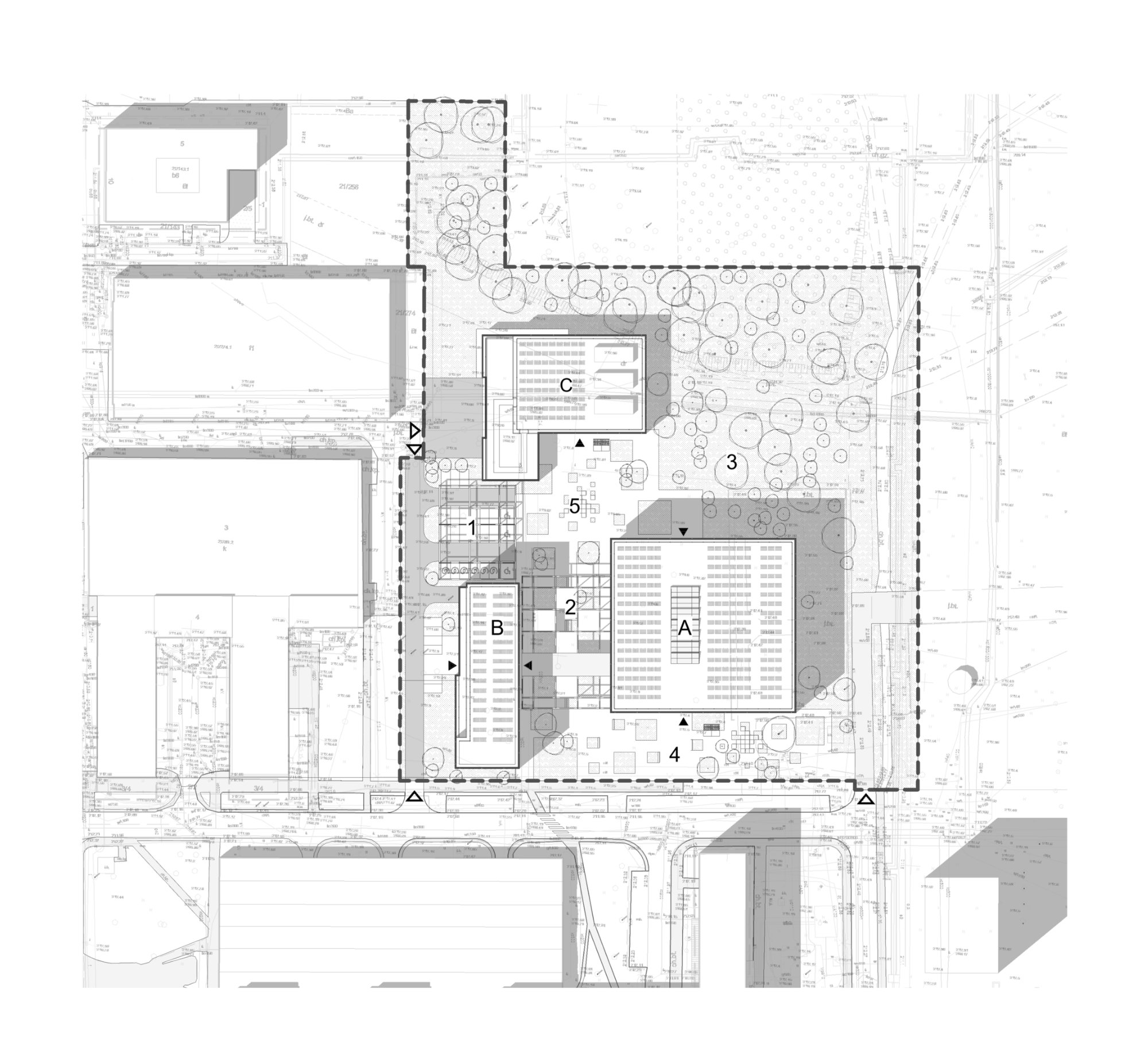
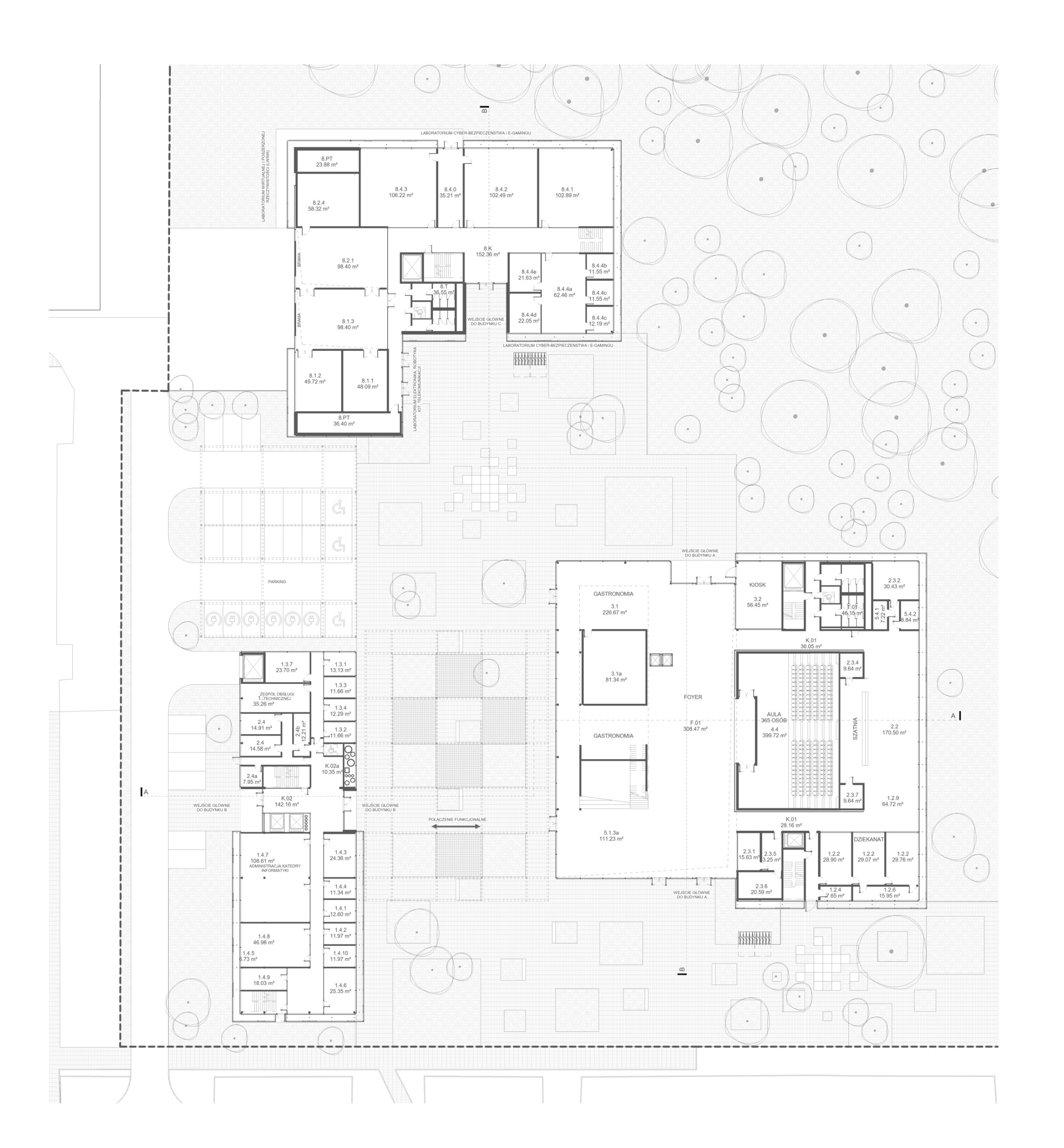
2402 - POLITECHNIKA

Rok: 2024
Typ: Uczelnia
Lokalizacja: Kraków
Projekt: Michał Głowiński, Natalia Kamianowska
Maciej Sewiołło, Paweł Burdyl
Bartłomiej Łobaziewicz, Monika Włodarczyk

Powierzchnia użytkowa: 12000m2

1 / 10

Politechnika – widok 1

2 / 10

Politechnika – widok 2

3 / 10

Politechnika – widok 3

4 / 10

Politechnika – widok 4

5 / 10

Politechnika – model 1

6 / 10

Politechnika – model 2

7 / 10

Politechnika – model 3

8 / 10

Politechnika – model 4

9 / 10

Politechnika – model 5

10 / 10

Instagram Facebook LinkedIn