• PRACOWNIA
  • PROJEKTY
  • PROCES
  • KONTAKT

2205 - DOM IMPREZ

Rok: 2022
Typ: Budynek mieszkalny jednorodzinny
Lokalizacja: Rabka Zdrój
Projekt: Michał Głowiński, Bartłomiej Łobaziewicz
Powierzchnia użytkowa: 250m2

1 / 19

Dom Imprez – widok 1

2 / 19

Dom Imprez – widok 2

3 / 19

Dom Imprez – widok 3

4 / 19

Dom Imprez – widok 4

5 / 19

Dom Imprez – widok 5

6 / 19

Dom Imprez – widok 6

7 / 19

Dom Imprez – widok 7

8 / 19

Dom Imprez – widok 8

9 / 19

Dom Imprez – widok 9

10 / 19

Dom Imprez – widok 10

11 / 19

Dom Imprez – widok 11

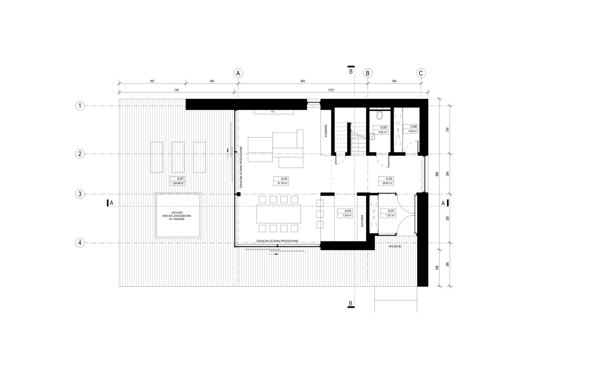
12 / 19

Dom Imprez – rysunek A01

13 / 19

Dom Imprez – rysunek A02

14 / 19

Dom Imprez – rysunek A03

15 / 19

Dom Imprez – rysunek A04

16 / 19

Dom Imprez – rysunek A05

17 / 19

Dom Imprez – rysunek A06

18 / 19

Dom Imprez – rysunek A07

19 / 19

Instagram Facebook LinkedIn