• PRACOWNIA
  • PROJEKTY
  • PROCES
  • KONTAKT

1704 - Dom 02

Rok: 2015
Typ: Budynek mieszkalny jednorodzinny
Lokalizacja: Krzemienica
Projekt: OBO Architekci, Michał Głowiński
Powierzchnia użytkowa: 107 / 156 m2

1 / 21

Dom 02 – widok 1

2 / 21

Dom 02 – widok 2

3 / 21

Dom 02 – widok 3

4 / 21

Dom 02 – widok 4

5 / 21

Dom 02 – widok 6

6 / 21

Dom 02 – widok 10

7 / 21

Dom 02 – widok 11

8 / 21

Dom 02 – rysunek A43

9 / 21

Dom 02 – rysunek A411

10 / 21

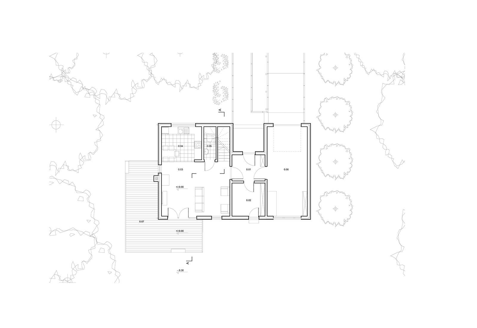
Dom 02 – rysunek A111

11 / 21

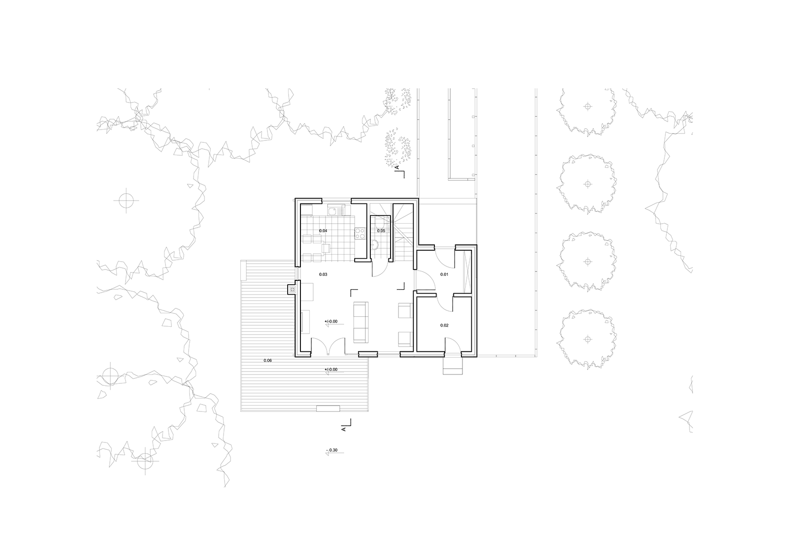
Dom 02 – rysunek A112

12 / 21

Dom 02 – rysunek A21

13 / 21

Dom 02 – rysunek A311

14 / 21

Dom 02 – rysunek A312

15 / 21

Dom 02 – rysunek A421

16 / 21

Dom 02 – rysunek A121

17 / 21

Dom 02 – rysunek A122

18 / 21

Dom 02 – rysunek A21

19 / 21

Dom 02 – rysunek A321

20 / 21

Dom 02 – rysunek A322

21 / 21

Instagram Facebook LinkedIn